© JoomAvatar.com
Joomla Extension-
Joomla Template
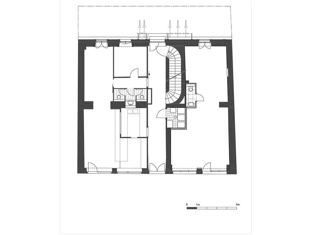
| Type: | Rénovation-transformation |
| Objet: | Immeuble locatif HBM |
| Année: | 2016 - 2020 |
| Maître d'ouvrage: | Fondation HBM Jean Dutoit |
| Type: | Rénovation-transformation |
| Objet: | Immeuble locatif HBM |
| Année: | 2016 - 2020 |
| Maître d'ouvrage: | Fondation HBM Jean Dutoit |